Plantegning
En plantegning er en teknisk tegning for hver etage i et hus (etageplan), der viser etagens rum og dets størrelse (kvadratmeter), vægges længder, samt døre og vinduer. Plantegningen viser også vigtigt inventar såsom toilet og bad, senge, køkkenborde, og så videre. En arkitektonisk tegning af en bygning viser oftest plane, snit og facader.
Der er for få eller ingen kildehenvisninger i denne artikel, hvilket er et problem. Du kan hjælpe ved at angive troværdige kilder til de påstande, som fremføres i artiklen.

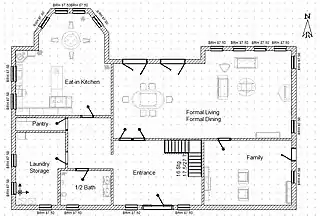
Et eksempel af en plantegning for en familie i villa.

Plantegning af en Safavid karavanserai.
This article is issued from Wikipedia. The text is licensed under Creative Commons - Attribution - Sharealike. Additional terms may apply for the media files.