Alcatraz Federal Penitentiary
| Alcatraz Federal Penitentiary | |
|---|---|
![]() Alcatraz set fra Pier 39 | |
| Generelle informationer | |
| Sted | San Francisco Bugt, Californien |
| Indviet | 1934 |
| Nedlagt | 21. marts 1963 |
| Kapacitet | 312 indsatte |
Alcatraz Federal Penitentiary (dansk: Alcatraz Føderale Fængsel) eller United States Penitentiary, Alcatraz Island, ofte blot kaldet Alcatraz, var et føderalt fængsel af højeste sikkerhedsklasse på Alcatraz Island, to kilometer ud for kysten ved San Francisco i Californien i USA. Fængslet blev drevet fra 1934 til 1963.
Hovedfængslet blev bygget i årene 1910-1912 som et militærfængsel, men allerede i 1860'erne var der blevet bygget et fort på øen. Stillehavsafdelingen af United States Disciplinary Barracks på Alcatraz blev overtaget af det amerikanske justitsministerium den 12. oktober 1933, og øen blev et føderalt fængsel i august 1934, efter at bygningerne var blevet moderniseret for at kunne opfylde kravene til et fængsel med højeste sikkerhed. På grund af denne høje sikkerhed og Alcatraz' placering i de kolde farvande og stærke strømme i bugten ud for San Francisco, mente man, at flugt fra Alcatraz var umulig, og at fængslet var USA's sikreste.
Alcatraz blev designet til fanger, som løbende havde skabt problemer i andre føderale fængsler. Fængslet er et af verdens mest berygtede og mest kendte og har i årenes løb huset 1.576 af Amerikas mest hensynsløse forbrydere, herunder Al Capone, Robert Franklin Stroud (også kendt som "Birdman of Alcatraz"), George "Machine Gun" Kelly, "Bumpy" Johnson, Rafael Cancel Miranda,[1] Mickey Cohen, Arthur R. "Doc" Barker, James "Whitey" Bulger og Alvin "Creepy" Karpis (der afsonede længere på Alcatraz end nogen anden indsat). På øen var der også boliger til fængselsstyrelsens ansatte og deres familier. I alt har 36 fanger lavet 14 flugtforsøg i løbet af fængslets 29 år; de mest bemærkelsesværdige var det voldelige flugtforsøg i maj 1946, der er kendt som "Slaget ved Alcatraz" og den sandsynligvis succesfulde flugt fra Alcatraz i juni 1962, som blev forsøgt af Frank Morris, John Anglin og Clarence Anglin, og som betragtes som et af de mest indviklede flugtforsøg, der nogensinde er udtænkt. På grund af for høje drifts- og vedligeholdelsesomkostninger og et dårligt omdømme blev Alcatraz lukket den 21. marts 1963.
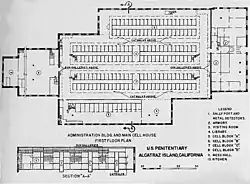
Cellehuset på tre etager indbefattede de vigtigste fire fængselsblokke, A-, B-, C- og D-blokken samt inspektørens kontor, visitationsværelset, biblioteket og barberen. Fængselscellerne målte typisk 2,7 meter gange 1,5 meter, og der var ca. 2,0 meter til loftet. Cellerne var primitive og tilbød intet privatliv; møblementet bestod af en seng, et skrivebord samt en håndvask og et toilet på bagvæggen og nogle få møbler, men ikke noget tæppe. Sorte mennesker blev adskilt fra resten, da raceforulempelser var udbredt. D-blokken husede de værste indsatte, og fem celler for enden af blokken blev betegnet som "The Hole" ("Hullet"), hvor fanger, der opførte sig dårligt, blev sendt hen i perioder for at få en - ofte - brutal straf. Spisesalen og køkkenet lå adskilt fra hovedbygningen i en udvidet del, hvor både indsatte og ansatte spiste tre måltider om dagen sammen. Gangene i fængslet blev opkaldt efter store amerikanske gader såsom Broadway og Michigan Avenue. At arbejde i fængslet blev betragtet som et privilegium for indsatte, og mange af de bedre indsatte blev beskæftiget i Model Industries Building og New Industries Building i løbet af dagen og blev inddraget aktivt i at levere forsyninger til militæret inden for fx syning og træarbejde foruden udførelse af diverse vedligeholdelse og tøjvask.
I dag er det angiveligt hjemsøgte fængsel et offentligt museum, der drives af National Park Services Golden Gate National Recreation Area og er en af San Franciscos største turistattraktioner, der tiltrækker omkring 1,5 millioner besøgende om året. De eroderede bygninger i det tidligere fængsel har været under reparation i den seneste tid.
Historie
Alcatraz' centrale celleblok ligger på den placering, hvor det militære citadel og fængsel oprindeligt lå, og som havde ligget på Alcatraz-øen siden 1860'erne. Et nyt cellehus blev bygget i 1910-1912 for et budget på 250.000 dollars, og ved indvielsen var den 152 meter lange bygning angiveligt den længste betonbygning i verden på det tidspunkt.[2] I 1933-1934 stod bygningen stadig, men blev moderniseret og kom til at fungere som det centrale cellehus i det føderale fængsel, indtil det blev lukket i 1963.[3] Da det nye betonfængsel blev opført i 1910-1912, blev mange materialer genbrugt ved opførelsen. Jerntrapper og døren nær barberen for enden af A-blokken blev benyttet fra det gamle citadel, og massive granitblokke, der oprindeligt blev brugt som geværstøtter, blev genbrugt i kajanlæggets skotter og støttemure.[4][5] Mange af de gamle tremmer blev brugt til at forstærke væggene, hvilket senere skulle forårsage strukturelle problemer i murværket, da mange tremmer placeret nær kanten eroderedes gennem årene af den salte luft og blæst.[5].

Efter den amerikanske hærs brug af øen i 80 år (1850-1933), kom øen, der hører under det amerikanske justitsministerium, under den føderale fængselsstyrelse. Formålet med denne overdragelse var at straffe dem, der var involveret i den grasserende kriminalitet, der herskede i USA i 1920'erne og 1930'erne.[6] Kasernen på Alcatraz blev erhvervet af det amerikanske justitsministerium den 12. oktober 1933, og øen blev en af fængselsstyrelsens føderale system af forbedringsanstalter i august 1934. Omdannelsen til et føderalt fængsel stod i 260.000 dollars og fandt sted fra januar 1934.[7][8] Dr. George Hess i USA Public Health Service blev udnævnt til førstelæge i fængslet, og Dr. Edward W. Twitchell blev ansat som konsulent i psykiatri på Alcatraz i januar 1934.[8] Hospitalsfaciliteterne blev kontrolleret af tre tjenestemænd fra Marinehospitalet i San Francisco.[8] Fængselsstyrelsens personale ankom til Alcatraz i begyndelsen af februar, blandt dem Loring O. Mills, der fungerede som førstefuldmægtig. I april 1934 blev det gamle materiale fjernet fra fængslet, og der blev skåret huller i betonen, og 269 cellerfronter blev installeret, bygget ved hjælp af fire vognladninger stål bestilt fra Stewart Iron Works.[8] En legende på værket siger, at en forsendelse af jern ved et uheld faldt i San Francisco-bugten under transporten fra San Francisco til Alcatraz, og at den aldrig blev bjærget og derfor måtte genbestilles.[9] To af fire nye trapper blev bygget foruden 12 døre til forsyningskorridorer samt riste øverst i cellerne. Den 26. april brød en tilfældig lille brand ud på taget, og en elektriker blev såret i foden ved at tabe et kloakdæksel på den.[8] Et hegn omkring Alcatraz blev opført af Anchor Post Fence Company, lighuset blev udstyret med nødbelysning, og et omstilllingsbord blev sat op af Enterprise Electric Works.[8] I juni 1934 begyndte Teletouch Corporation of New York installationen af en "elektromagnetisk pistol eller et metalafsløringssystem" på Alcatraz, og detektorer blev sat op på kajen, foran indgangen til celleblokken og ved lågen ved bagindgangen.[8] Vagterne blev instrueret i at betjene de nye låseanordninger den 30. juli 1934, og det nye radioudstyr blev testet af både den amerikanske kystvagt og San Franciscos politi på samme dag.[8] En afsluttende kontrol og gennemgang blev foretaget de to første dage i august.[8]

Alcatraz var designet til huse fanger, som kontinuerligt havde forårsaget problemer i andre føderale fængsler, altså en slags "sidste udvejs-fængsel" til de værste af de værste forbrydere, som ikke havde noget håb om rehabilitering.[10][11] Kl. 9:40 om morgenen den 11. august 1934 ankom det første parti af 137 fanger med jernbane fra fængslet i Leavenworth i Kansas til Santa Venetia i Californien, inden de blev eskorteret til Alcatraz, i håndjern og bevogtet af omkring 60 særlige FBI-agenter, US Marshalls og jernbanens sikkerhedsfolk.[8][12] Omkring 32 fanger fra det oprindelige militærfængsel skal også have været blandt de første indsatte.[4] Hovedparten af fangerne var berygtede bankrøvere og bedragere, mordere eller sodomister.[12] Blandt de første fanger var der også 14 mænd fra McNeil Island i Washington.[8] Den 22. august ankom 43 fanger fra Atlanta Penitentiary og 10 fra Lewisburg i Pennsylvania.[8] Den 1. september ankom en fange fra Washington Asylum and Jail og syv fra District of Columbia Reformatory i Virginia. Den 4. september ankom et andet parti bestående af 103 fanger med tog fra Leavenworth.[8] Der fortsatte med at komme fanger, hovedsagelig fra Leavenworth og Atlanta i 1935, og inden den 30. juni 1935 havde fængselsvæsenet samlet 242 fanger på Alcatraz, selv om nogle fanger som Verrill Rapp allerede var blevet overført fra Alcatraz nogle måneder tidligere.[8] På den første årsdag som et føderalt fængsel, den 30. juni 1935, bemærkede fængselsstyrelsen, at: "Etableringen af denne institution har ikke kun tilvejebragt et sikkert sted for tilbageholdelsen af vanskelige kriminelle, men har tillige haft en god virkning på disciplinen i vores andre fængsler. Ingen alvorlige forstyrrelser af nogen art er blevet rapporteret i løbet af året". Metaldetektorerne forårsagede til at begynde med et problem ved overophedning og måtte ofte være slukket. Teletouch Corporation blev ansat til at løse problemet, men det mislykkedes; i 1937 blev deres kontrakt opsagt, og de blev opkrævet over 200 dollars for tre nye detektorer, som blev leveret af Federal Laboratories.[8]
Den 10. januar 1935 forårsagede en alvorlig storm et jordskred på Alcatraz, hvilket fik Model Industries Building til at skride.[8] Dette markerede starten på en række ændringer af bygningerne på øen. Der blev etableret et kystsikringssystem, og et vagttårn blev bygget på taget i juni 1936, og samme måned blev den tidligere kasernebygning omdannet til 11 nye lejligheder og ni enkeltværelser for ungkarle. På dette tidspunkt boede 52 familier på Alcatraz Island, herunder 126 kvinder og børn.[8] Problemerne med industribygningen og de fortsatte forsyningsproblemer i nogle af de gamle bygninger og systemer førte til omfattende arbejder i 1937, herunder opsætning af et nyt gitterværk, der var modstandsdygtigt overfor værktøj, på ventilatorerne på taget af cellehuset, to nye kedler i kraftværket og en ny pumpe til saltvandet, der blev brugt til sanitære formål samt rækværk på trapperne.[8] I 1939-1940 blev ombygninger for 1,1 million dollars sat i gang, herunder opførelsen af New Industries Building, en gennemgribende renovering af kraftvæket med ibrugtagningen af en ny dieselmotor, bygningen af et nyt vandtårn for at løse vandopbevaringproblemet, opførelsen af nye boligblokke for officerer, udbedringer af anløbsbroen samt omdannelsen af D-blokken til isolationsceller.[8] Renoveringsarbejderne blev afsluttet i juli 1941. Værkstederne i New Industries Building var meget produktive og fremstillede hæruniformer og bagagenet og andre emner, som var stærkt efterspurgte under Anden Verdenskrig.[8]

Alcatraz blev berygtet fra starten som det hårdeste fængsel i Amerika og anses af mange for at være verdens mest frygtindgydende fængsel fra den tid, og tidligere indsatte har ofte rapporteret om den brutalitet og de umenneskelige forhold, som underkastede deres mentale helbred hårde prøver.[13][14][15] Ed Wutke var den første fange, der begik selvmord i Alcatraz, og Rufe Persful huggede sine fingre af efter at have taget en økse fra brandbilen og tiggede en anden indsat at gøre det samme mod den anden hånd.[15] En forfatter beskrev Alcatraz som "San Francisco-bugtområdets store skraldespand, hvori hvert føderalt fængsel dumpede sine mest rådne æbler".[16] I 1939 angreb den nye amerikanske justitsminister Frank Murphy fængslet, idet han sagde: "Hele institutionen er udtryk for et psykologisk miljø, som bygger en skummel, ambitiøs holdning op blandt de indsatte".[8] Fængslets omdømme blev ikke bedret af indsættelsen af flere af Amerikas mest farlige kriminelle, herunder Robert Stroud, "Birdman of Alcatraz", i 1942, som tilbragte 17 år på øen. Men noget modstridende sit ry og den kendsgerning, at mange tidligere indsatte kaldte fængslet "Hellcatraz" baseret på de rædsler, nogle fanger rapporterede, meddelte andre fanger, at levevilkårene i Alcatraz var meget bedre end i de fleste andre fængsler i landet, især mht. maden, og mange ønskede frivilligt at afsone på Alcatraz.[6]
Den 3. december 1940 myrdede Henri Young medfangen Rufus McCain. Han løb nedenunder fra møbelværkstedet til skrædderen, hvor McCain arbejdede, og stak ham brutalt i nakken med en kniv. McCain døde fem timer senere.[8] Young var blevet dømt for mord og sendt til Alcatraz i 1933 og var involveret i et flugtforsøg fra Alcatraz, under hvilket den berømte gangster Doc Barker blev skudt og døde. Young tilbragte næsten 22 måneder i isolation, men fik senere lov til at arbejde på møbelværkstedet. Han sad på anklagebænken i 1941, hvilket bragte Alcatraz i yderligere miskredit, da Youngs advokater hævdede, at han ikke kunne gøres ansvarlig for mordene, fordi han havde været underkastet en "grusom og usædvanlig straf".[8] Young blev dømt for manddrab, og hans fængselsstraf blev kun forlænget med et par år.

I 1950'erne var fængselsforholdene blevet forbedret, og fangerne fik gradvist flere privilegier; fx måtte de spille musikinstrumenter, se film i weekenden, male og høre radio; det strenge tavshedskrav blev lempet, og fanger fik lov til at tale roligt med hinanden.[15] Men fængslet var fortsat upopulært på fastlandet i 1950'erne, og det var den dyreste fængselsinstitution i USA og fortsatte med at være opfattet af mange som Amerikas mest ekstreme fængsel.[17][8] I sin årsberetning for 1952 opfordrede direktør James V. Bennett til, at man erstattede Alcatraz med en mere centraliseret institution.[8] En rapport fra 1959 fremhævede, at Alcatraz var mere end tre gange så dyr at drive end det gennemsnitlige amerikanske fængsel, idet det kostede ti dollars pr. fange om dagen sammenlignet med tre dollars pr. fange pr. dag i de fleste andre fængsler.[18] Problemet med Alcatraz blev forværret af det faktum, at fængselsbygningens tilstand var blevet alvorligt forværret, da den var udsat for den salte luft og vind i San Francisco-bugten, og at det ville koste fem millioner dollars at gøre noget ved problemet. Større reparationer begyndte i 1958, men i 1961 vurderede ingeniører, at det var håbløst at reparere på Alcatraz, og Robert F. Kennedy fremlagde planer for en ny topsikret institution i Marion i Illinois.[8] Efter flugten fra Alcatraz i juni 1962 blev fængslet genstand for intense undersøgelser, og med de store problemer med bygningerne og de løbende regninger blev fængslet lukket den 21. marts 1963.[18] I en afsluttende rapport fra fængselsstyrelsen hed det om Alcatraz Federal Penitentiary: "Institutionen tjente et vigtigt formål ved at tage presset af nogle af de ældre og stærkt overfyldte fænglser i Atlanta og Leavenworth og på McNeil Island og muliggjorde, at flugtkunstnere, storbedragere, inkarnerede kriminelle og andre, som det var nødvendigt at isolere, kunne flyttes til en mindre, tæt bevogtet institution".[8]
I dag er fængslet et museum og en af San Franciscos største turistattraktioner, der tiltrækker omkring 1,5 millioner besøgende om året.[19][20] De besøgende ankommer med båd og får en rundvisning i cellehuset og på øen samt et diasshow med indtalte anekdoter fra tidligere indsatte, vagter og betjente fra Alcatraz.[21] Atmosfæren i det tidligere fængsel stadig anses for at være "uhyggelig" og "kølig".[21] Selvom National Park Service og National Registry of Historic Places passer stedet, har de stærkt eroderede bygninger i det tidligere fængsel været genstand for restaurationsarbejder i den seneste tid.[22]
Flugtforsøg
Ifølge fængselsbetjentene, var flugtmulighederne det første en straffefange tænkte på, når han havde sat fod på Alcatraz' kaj.[23] Fængslet var i drift i 29 år, og fængselsvæsenet hævder, at ingen fange har haft held til at undslippe. I alt har 36 fanger lavet 14 flugtforsøg; to mænd har forsøgt to gange. 23 af fangerne blev fanget igen, seks blev skudt og dræbt under deres flugt, to druknede, og fem er rapporteret "bortkomne og formodentlig druknede".[24]
Det første mislykkede forsøg på at undslippe fængslet blev foretaget den 27. april 1936 af Joe Bowers, der havde til opgave at brænde affald på forbrændingsanlægget. Han forsøgte at flygte i løbet af tjenestetiden ved at klatre op over hegnet. Da han blev opdaget og modsatte sig ordrerne til at komme ned fra fængselsbetjenten i den vestlige vejs vagttårn vagttårn, blev han skudt. Han blev alvorligt kvæstet under faldet på over 50 meter og døde.[6]
Det første flugtforsøg, der skulle anrette skader på Alcatraz' ry som et "flugtsikkert" fængsel blev foretaget den 16. december 1937 af Theodore Cole og Ralph Roe. Under deres arbejde i en af fængslets workshops, skar de jernstængerne væk fra vinduet og kravlede ned og gik i vandet for at flygte. Det var en stormfuld dag, og bugtens vand var meget oprørt. Da de flygtende ikke blev fundet, blev de på grund af det voldsomme vejrlig erklæret druknede af fængselsmyndighederne.[6]


Det mest voldsomme flugtforsøg fandt sted den 2.-4. maj 1946, hvor et mislykket forsøg fra seks fanger førte til Slaget ved Alcatraz, også kendt som "Alcatraz Blastout". Det blev udført af seks fanger, Bernard Coy, Joseph Cretzer, Sam Shockley, Clarence Carnes, Marvin Hubbard og Miran Thompson. De overtog dristigt kontrollen med celleblokken ved at overmande vagterne og officererne og indtog våbendepotet og nøglerne til døren ud til gården. Deres mål var at flygte med båd fra anløbsbroen. De fik imidlertid ikke nøglerne til yderdøren, og derfor besluttede de sig for at kæmpe sig ud. I kampen, der fulgte, formåede de at holde to vagter som gidsler, som de endte med at dræbe efter to dage. Foranlediget af Shockley og Thompson skød Cretzer gidslerne på meget tæt hold; en af vagterne, William Miller, bukkede under for sine kvæstelser, mens den anden vagt, Harold Stites (som havde forhindret det tredje flugtforsøg fra Alcatraz) blev dræbt ved cellehuset. Shockley, Thompson og Carnes tog tilbage til deres celler, men de tre andre, Coy, Cretzer og Hubbard, fortsatte kampen. US Marines blev sat ind og dræbte de tre fanger. I denne kamp blev, udover vagterne og de dræbte fanger, 17 vagter og en fange også såret. Shockley, Thompson, og Carnes blev retsforfulgt for drabet på vagterne, og retten tilmålte dem dødsstraf. Shockley og Thompson kom i gaskammeret i San Quentin i december 1948, men Carnes, som var kun 19 år gammel, fik en ny livstidsstraf.[6][25]
Den 11. juni 1962 foretog Frank Morris, John Anglin og Clarence Anglin et af de mest indviklede flugtforsøg, der nogensinde er udtænkt. Bag fangernes celler i B-blokken (hvor flygtende fanger blev interneret) var der en ubevogtet forsyningsskakt, der var ca. en meter bred. Fangerne mejslede den fugt-beskadigede beton væk fra området omkring udluftningen, der førte ud til den nævnte korridor, ved hjælp af værktøjer såsom en metalske og en elektrisk boremaskine, der var lavet vha. en stjålet støvsugermotor. De arbejdede med den, når der blev spillet harmonika i musiktimen, så støjen ikke blev opdaget, og de fremskridt, de gjorde på hullet, blev dækket med falske vægge, som i de mørke afkroge af cellerne narrede vagterne.[6]

Flugtvejen førte op gennem en ventilationsskakt; fangerne fjernede ventilatoren og motoren og erstattede dem med et stålgitter, så der lige netop var plads nok til, at et menneske kunne komme ind. De producerede papmachédukker udstyrede med menneskehår fra barberen og lagde dem i deres senge. De flygtende byggede også en oppustelig redningsflåde ved hjælp af over 50 stjålne regnfrakker. De byggede flåden på toppen af cellehuset, skjult for vagterne. Da de tog flugten, forlod de fængslet via taget.[6][25]
Den officielle undersøgelse blev gennemført af FBI, som fik hjælp af en anden fange, Allen West, som var en del af udbrydergruppen, men som var blevet efterladt. Wests falske væg blev nemlig ved med at skride, så han var nødt til at fiksere den med cement. Morris og Anglins havde imidlertid fremskyndet deres tidsplan. West huggede desperat løs på væggen, men da han nåede ud, var hans følgesvende væk. Fangernes ting, herunder padler af krydsfinér og dele af regnfrakkeflåden, blev opdaget på den nærliggende Angel Island. FBI's undersøgelse varede fra 1962 til december 1979, før den blev lukket.[26] Den officielle rapport om flugten fastslog, at fangerne druknede i det kolde vand i bugten, mens de forsøgte at nå fastlandet, da det var usandsynligt, at de kunne klare de to kilometer ind til fastlandet på grund af de kraftige havstrømme og det kolde havvand med temperaturer på 10-13 grader.[6][25] Der har imidlertid siden dengang været rapporter om, at der var en ulovlig båd i bugten på flugtnatten, at mændene skal have stjålet en Chevrolet på fastlandet, at de er blevet observeret, og at venner og familiemedlemmer har modtaget mange postkort og beskeder fra dem, omend uden underskrift. Moderen til Anglin-brødrene fik anonymt tilsendt blomster hver Mors dag, og to meget høje usædvanlige kvinder blev set ved hendes begravelse, før de forsvandt. Der blev også foretaget et opkald til politimesterkontoret dagen efter flugten fra en mand, der hævdede at være John Anglin. Flugten fremstilles i filmen, Flugten fra Alcatraz (1979) med Clint Eastwood, Fred Ward og Jack Thibeau som hhv. Frank Morris, John Anglin og Clarence Anglin, mens Allen West blev spillet af Larry Hankin, omend figuren i filmen har navnet Charley Butts. Filmen antyder kraftigt, at mændene nåede ind til fastlandet.[27]
Administration
.jpg)

Fængslet havde oprindeligt en stab på 155 personer, herunder den første fængselsinspektør James A. Johnston og underinspektøren Cecil J. Shuttleworth, som begge ansås for at være "jernmænd".[12] Fængslets personale var ikke uddannet i rehabilitering, men veltrænet i sikkerhedsforhold.[12] Vagterne og ansatte i Alcatraz fik varierende lønninger. En ny vagt, der ankom i december 1948, blev tilbudt 3.024,96 dollars om året, men der var et fradrag på 6 % til pensionering, svarende til 181,50 dollar om året.[28] Vagterne arbejdede typisk 40 timer om ugen i fem skift à otte timer.[28] Vagter, der arbejdede mellem kl. 18.00 og kl. 6.00, modtog et tillæg på 10 %, og vagter, der påtog sig overarbejde, skulle indberette det og få det godkendt af inspektøren.[28] Betjente betalte 25 cent for måltiderne og blev opkrævet en leje på ti dollars for en lejlighed på øen; lejen indbefattede tøjvask. Større familier blev dog opkrævet 20-43 dollars om måneden for en større bolig samt yderligere betaling for vasketøjet.[28] Et dokument fra fængselsstyrelsen fra 1960 viste, at det gennemsnitlige antal indsatte i fængslet mellem 1935 og 1960 var på 263. Det højeste antal indsatte var 302 personer i 1937, mens det laveste antal var på 222 i 1947.[29]
Administrationens vigtigste kontorer lå ved indgangen til fængslet. Her lå også inspektørens kontor. Kontoret havde et skrivebord med radio og telegrafudstyr, en skrivemaskine og en telefon.[30] Der var også et kontor til underindspektøren og en sekretær, samt et postkontor, et befalingskontor, en regnskabsafdeling og et kontrolrum, som var udstyret med ny og moderne teknologi i 1961. Dertil kommer betjentstuen, våbenkammeret, et visitationscenter og toiletter.
Alcatraz-fængslets kælder indeholdt fangehuller og brusekabiner.[31] Hovedtrappen ned til fangehullet lå langs Sunrise Alley ved A-blokken, men man kunne også komme derned via en trappe under en lem, der befandt sig i D-blokkens korridor. Alle besøg på Alcatraz krævede forudgående skriftlig godkendelse fra inspektøren.[32]
Der havde oprindelig været et hospital på Alcatraz, da der var et militært fængsel på øen i slutningen af det 19. århundrede.[33] I løbet af sin tid som et føderalt fængsel var hospitalet placeret over spisesalen på anden sal. De hospitalsansatte var offentligt ansatte læger og sygeplejersker, der havde fået arbejde i den føderale fængselstjeneste på Alcatraz.[34] Lægerne holdt ofte kun nogle dage eller måneder på Alcatraz, da kun få af dem kunne tåle de voldelige indsatte, som ofte ville overrumple dem, hvis de ikke fik visse lægemidler.[34] Fanger ved dårligt helbred blev ofte holdt på hospitalet; mest berømt var Stroud og Capone, der tilbragte årevis på hospitalet.[35][36]
Sikkerhed
Da fængselsstyrelsen overtog Alcatraz Federal Penitentiary den 1. januar 1934, markerede det starten på en række tiltag, der skulle styrke sikkerheden og gøre Alcatraz et "flugtsikkert" fængsel i højeste sikkerhedsklasse samt forbedre vilkårene for personalet, der stod for drift og vedligeholdelse. Tidens teknologiske fremskridt blev udnyttet og indbygget i bygningerne på Alcatraz, herunder sikkerhedsvagtstårnene, der blev placeret udenfor på fire strategiske steder, ombygningen af cellerne, der dels betød, at man helt undgik, at cellerne grænsede op til en ydre væg og dels udstyrede dem med "fronter der var modstandsdygtige overfor værktøj og låseanordninger, der blev styret fra kontrolbokse"; alle vinduer blev endvidere sikret med jerngitre, elektromagnetiske metaldetektorer blev placeret ved indgangen til spisesalen og fængslets workshops, og fjernstyrede tåregasbeholdere blev opsat på passende steder; bevæbnede vagter med maskingeværer patruljerede i korridorerne, toilet- og el-anlæg blev forbedret, gamle tunneler med beton blev lukket for at undgå skjulesteder og mulig flugt for fangerne, og endelig blev der gennemført mærkbare ændringer og forbedringer af de beboelsesmuligheder, der blev stillet til rådighed for vagter, inspektører og kaptajnen, idet forbedringerne varierede med beboernes rang. Homer Cummings, der var justitsminister, og Sanford Bates, fængselsstyrelsens første direktør samt inspektør Johnston samarbejdede meget tæt for at skabe "et legendarisk fængsel", der passede til tiden, hvilket medførte, at Alcatraz Federal Penitentiary også blev kendt som Uncle Sam's Devil's Island (Onkel Sams Djævleø).[37]

Selv om Alcatraz var udformet, så det kunne rumme de "værste af de værste" kriminelle, der skabte problemer i andre fængsler i henhold til de retningslinjer og bestemmelser, der var fastsat af strenge administratorer, kunne retterne ikke bestemme, at en fange skulle sendes direkte til Alcatraz, hvor dårligt han end havde opført sig i andre fængsler, og hvor mange gange han end måtte have forsøgt at flygte.[37] Fanger, der blev sendt til Alcatraz, blev grundigt undersøgt og vurderet, før de kom til øen. Sikkerheden i fængslet blev prioriteret højt, og døre, låse, elektriske installationer m.v. blev konstant tjekket for at sikre, at der ikke skulle opstå en uønsket situation.[38] På en almindelig dag blev fangerne talt 13 gange, og det antalsmæssige forhold mellem fanger og vagter var det laveste i noget amerikansk fængsel på den tid.[39][40] Hoveddøren var lavet af massivt stål, der gjorde den næsten umulig for fangerne at benytte som eventuel flugtvej.[41] Øen havde mange vagttårne, hvoraf de fleste sidenhen er blevet revet ned. Herfra kunne man bevogte fangerne på forskellige tidspunkter på dagen, hvor sikkerheden kunne være blevet kompromitteret. Fx var der vagttårne på hver af arbejdsbygningerne for at sikre, at de indsatte ikke skulle forsøge at flygte i løbet af arbejdsdagen. Gården og andre dele af fængslet havde et hegn, der var over 7,5 meter højt og toppet med pigtråd,[13] for det tilfælde at en indsat skulle forsøge at flygte under gårdturen. En tidligere ansat i fængslet har sammenlignet sit fængselsjob med at være dyrepasser eller et tidligere job på en gård, fordi fangerne ikke blev rehabiliteret eller uddannet, men behandlet som dyr, som han således sendte ud for at "pløje markerne", når nogle af dem skulle arbejde i løbet af dagen og derefter tælle dem op og fodre dem og så videre.[38] Han omtalte disse fire år af sit liv med arbejdet i fængslet som et "totalt spild af sit liv".[38] Gangene blev regelmæssigt patruljeret af vagter, som passerede gennem portene langs dem. Den mest trafikerede korridor var "Broadway" mellem B- og C-blokken, da den lå midt i fængslet og ikke kun blev benyttet af vagter, men også af andre af fængslets ansatte.[42]
Ved afslutningen af hvert 20 minutters måltid i spisesalen blev gafler, skeer og knive lagt ud på bordet og omhyggeligt talt for at sikre, at intet var blevet taget for at blive brugt som potentielt våben. I de tidlige år var det fangerne forbudt at tale, mens man spiste, men reglen blev senere lempet, forudsat at fangerne talte roligt sammen.[38][43]
Våbensalen lå i gården ved en af spisesalens ydre mure.[44] Der var en metaldetektor uden for spisesalen af sikkerhedsmæssige årsager. Spisesalen havde tåregasbeholdere opsat på spærene i loftet, og de kunne aktiveres ved fjernstyring, hvis de indsatte forsøgte på optøjer eller viste tegn på at ville flygte.[45][14] Den første inspektør, James A. Johnston, kom altid ind i spisesalen alene og ubevæbnet, men der var kraftig bevogtning omkring ham.[46] Flere optøjer brød ud i spisesalen i Alcatraz' historie. De fanger, der ikke var involveret i kampene gemte sig under spisesalens borde for at undslippe en eventuel ildkamp.[47]
Inspektører
| Billede | Navn | Periode | Referat |
|---|---|---|---|
![]() | James A. Johnston | 1934-1948 | James Aloysius Johnston (15. september 1874 i Brooklyn, NY - 7. september 1954 i San Francisco, Californien) (øgenavn: "Old Saltwater") [48] var den første fængselsinspektør i Alcatraz. Han havde tidligere været inspektør i Folsom og i San Quentin og var medvirkende til at udvikle Alcatraz som fængsel og var involveret i udformningen af det som et føderalt fængsel i 1934.[48] Han blev anset for at hævde en meget streng disciplin og var en vedholdende reformist, der indført en række regler i fængslet, herunder et strengt kodeks for tavshed, hvilket førte til, at han fik tilnavnet 'Golden Rule Warden' fra hans dage i San Quentin.[48] Men han var forholdsvis populær blandt de indsatte - og han krediteres dog for at have lempet den barbariske fængselsorden, der indbefattede brug af spændetrøje og isolationsfængsling i mørke. Han arbejdede for en generel forbedring af livet for fangerne. I 1937 blev han angrebet af Burton Phillips bagfra i spisesalen, der slog ham i vrede over en arbejdstagers strejke, men han fortsatte med at deltage i måltider uden ekstra sikkerhedsforanstaltninger.[48] |
![]() | Edwin B. Swope | 1948-1955 | Edwin Burnham Swope (1888-1955) (øgenavn: "Cowboy") var den anden fængselsinspektør på Alcatraz. Han har tidligere været inspektør i New Mexicos Statsfængsel og Washingtons McNeil Island-statsfængsel. Han blev beskrevet som værende cirka 1,75 m høj og slankt bygget. Han gik op i hestevæddeløb og var klædt som en cowboy når han ikke havde vagt.[49] Han håndhævede en streng disciplin, men i modsætning til sin forgænger, James A. Johnston var han en meget upopulær fængselsinspektør, både blandt ansatte og indsatte.[50] |
![]() | Paul J. Madigan | 1955-1961 | Paul Joseph Madigan var den tredje fængselsinspektør på Alcatraz. Han havde tidligere tjent som den sidste underinspektør under James A. Johnston.[51] Han er blevet nævnt som den eneste fængselsinspektør, der har arbejdet sig op fra bunden af menige i fængselspersonalets hierarki, idet han startede som "Correctional Officer" på Alcatraz i 1930'erne.[52][50] Den 21. maj 1941 var Madigan en central figur i omstødelsen et flugtforsøg efter at være blevet holdt som gidsel i Model Industries Building, en hændelse der senere førte til en forfremmelse til underinspektør.[51] Han havde et tykt, rødmosset ansigt og var en piberygende, gudfrygtig, irsk katolik.[53] I modsætning til sine forgængere var Madigan kendt for at være mere lempelig og blødere i sin tilgang til administrationen af fængslet, og han var mere vellidt af fængselspersonalet.[52] |
![]() | Olin G. Blackwell | 1961-63 | Olin Guy Blackwell (1915 - ?) var den fjerde og sidste inspektør på Alcatraz. Han var underinspektør for Paul J. Madigan fra april 1959[51] og tjente som inspektør i fængslets mest vanskelige tid, 1961-1963, da det stod overfor lukning. Fængslet var forfaldent, og der var problemer med finansieringen, hvilket også faldt sammen med den berygtede flugt fra Alcatraz i juni 1962. Da flugten fandt sted, var Blackwell på ferie i Lake Berryessa i Napa County, og han troede ikke mændene kunne have overlevet turen i vandet og være nået sikkert ind til kysten.[54] Blackwell blev anset for den mindst strenge inspektør på Alcatraz, måske delvis fordi han var storforbruger af alkohol og storryger. Han bar tilnavnet "Gypsy" og var kendt som "Blackie" blandt venner [51] Han sagdes at have været fremragende skytte. Han tjente tidligere som underinspektør på fængslet i Lewisburg.[51] |
Fængselslivet og cellerne


Et register over de indsatte viser, at der har været 1.576 fanger på Alcatraz i alt i løbet af dets tid som statsfængsel; nogle kilder oplyser dog et tal på 1.557.[55][56] Fængselscellerne, der var nøje designet, så ingen celle stødte op til en ydervæg,[14] målte typisk 2,7 meter gange 1,5 meter, og der var ca. 2,0 meter til loftet.[57] Cellerne var primitive og udstyret med en seng, et skrivebord og en håndvask og et toilet på bagvæggen samt nogle få møbler, men ikke noget tæppe.[57] Et ventilationshul på 1,5 gange 2,3 cm var dækket af et metalgitter og befandt sig på bagvæggen i cellerne og ledte ud til cellernes forsyningsskakt.[57] Fangerne kunne ikke gå uset på toilettet; toiletterne udsendte en stærk stank, fordi de blev skyllet med saltvand. Der blev ikke installeret vandhaner med varmt varm før begyndelsen 1960'erne, kort før fængslet blev lukket.[57].
Fængselsvæsenet arbejdede med et meget strengt sæt af regler og bestemmelser, der var gældende for forvaltningen af og disciplinen i amerikanske straffe- forbedringsanstalter samt en daglig tællings- og arbejdsrutine, der skulle følges af fangerne og af vagterne. Der blev uddelt kopier af disse dokumenter til fangerne, som de skulle læse og respektere. De indsatte havde ret til mad, tøj og lægehjælp. Alt andet blev betragtet som privilegier. Indsatte fik en blå skjorte og et par grå bukser (blå og hvid i de senere år[55]) samt lange bomuldsunderbukser, sokker og et blåt lommetørklæde. Brugen af hætter blev forbudt i cellehuset.[57] Celler skulle holdes ryddelige og i god orden. Enhver farlig genstand i cellerne eller på de indsatte, såsom penge, narkotika, euforiserende stoffer eller værktøj, som kunne påføre andre skade eller bruges til et flugtforsøg blev betragtet som smuglervarer og medførte disciplinære foranstaltninger for fangerne.[55] Det var obligatorisk for de indsatte at barbere sig i deres celler tre gange om ugen. Forsøg på at bestikke, intimidere eller overfalde fængselsbetjente blev anset for en meget alvorlig forbrydelse.[55] Sorte mennesker blev adskilt fra resten i celleblokken, da raceforulempelser var udbredt.[58] Toiletpapir, tændstikker og sæbe blev uddelt på tirsdage og lørdage, og de indsatte kunne anmode om varmt vand og en moppe, så de kunne gøre rent i deres celler.[55] Tremmerne, vinduerne og gulvene i fængslet blev rengjort dagligt.[58] I de tidlige år var der et strengt stilhedskodeks, men i 1950'erne blev der løsnet op, og det blev tilladt at tale i celleblokken og i spisesalen forudsat at samtalerne var rolige, og at der ikke var råben, højlydt tale, fløjten eller syngen.[55]


Fanger blev vækket kl. 6.30 og sendt til morgenmad kl. 6.55. Efter tilbagekomsten til cellen skulle de indsatte rydde deres celle og sætte deres skraldespand udenfor.[55] Kl. 7.00 startede arbejdet i skiftehold for dem, der havde det privilegium, det var at måtte arbejde. Et pift i en fløjte var signal om, at det var tid til at gå i gang. Fangerne skulle gå igennem en metaldetektor ifm. arbejdet.[38] Hvis man fik tildelt et job, måtte man acceptere det arbejde, man fik. Fangerne måtte ikke have penge blandt deres ejendele, men indtjeningen gik ind på en fanges Trust Fund.[55] Nogle af fangerne blev tildelt opgaver sammen med vagterne og formændene i tøjvasken, skrædderiet, i skomagerværkstedet m.v. samt havearbejde. Rygning var et privilegium og var tilladt på arbejdspladsen, forudsat at det ikke udgjore nogen fare ifm. arbejdet, men de indsatte måtte ikke ryge på vejen mellem gården og arbejdsstedet. Frokosten blev serveret kl. 11.20 efterfulgt af 30 minutters hvile i cellen, før man vendte tilbage og arbejdede indtil kl. 16.15.[38] Middagen blev serveret kl. 16.25, og fangerne skulle så trække sig tilbage til deres celler for at blive låst inde kl. 16.50. Lysene gik ud kl. 21.30.[38][59] Efter at fangerne var blevet låst inde for natten, var der normalt seks vagter, der patruljerede i de fire celleblokke.[58] På grund af de ekstreme forhold i Alcatraz var de fleste af vagterne mænd, der var næsten lige så hærdede som de kriminelle, de havde med at gøre.[60] Mange indsatte har sammenlignet deres ophold på Alcatraz med helvede og ville have foretrukket døden frem for fortsat fængsling.[61]
Alcatraz Bibliotek var placeret for enden af D-blokken. Ved ankomsten til Alcatraz fik hver indsat et lånerkort og et katalog over de bøger, der fandtes i biblioteket. De indsatte kunne bestille bøger ved at sætte en seddel med deres kort i en boks ved indgangen til spisesalen før morgenmaden, og bøgerne ville så blive leveret til deres celle af en bibliotekar.[62][63][59] Biblioteket havde en samling på 10.000 til 15.000 bøger, hovedsageligt tiloversblevne værker fra hærens dage.[64][63][59] Indsatte måtte højst låne tre bøger ad gangen foruden tolv lærebøger, en bibel og en ordbog.[59] De fik tilladelse til at abonnere på magasiner, men kriminalitetsrelaterede sider blev revet ud. Aviser var ikke forbudt,[63] men alle blade og bøger, der handlede om sex, kriminalitet og vold var ikke tilladte; bibliotekets præst stod for censuren og skulle sikre, at de indsatttes læsestof var af en passende moralsk karakter.[59][64] Hvis man ikke afleverede sine udlån til tiden, kunne man få frataget sine lånerprivilegier.[59] Den gennemsnitlige fange kunne læse 75 til 100 bøger om året.[65] De indsatte læste hver aften og brugte som regel en time eller 75 minutter på at spille musik på instrumenter, der omfattede alt fra guitar til harmonika. Et fængselsband øvede ofte i spisestuen eller i salen ovenover. Al Capone er berømt for at have spillet banjo i brusebadsblokken, selv om de fleste fanger kun fik lov at spille i deres celler.[66]
Gange
Gangene i cellehuset på Alcatraz var navngivet efter store amerikanske gader og vartegn. Michigan Avenue var korridoren ud til siden af A-blokken, og Broadway var den centrale gang, hvor de indsatte samledes for at bevæge sig over Times Square (et område med et ur på væggen), inden de kom ind i spisesalen, hvor de indtog deres måltider. Broadway adskilte B- og C-blokken, og de fanger, der havde celler her, var dem, der havde mindst privatliv i fængslet.[67] Korridoren mellem C- og D-blokken blev kaldt Park Avenue.[67] Korridoren i D-blokken havde navnet Sunset Strip. Der var skydegallerier ved udgangen af hver blok.[3]
A-blokken
Da ingen fange i Alcatraz' tid som føderalt fængsel blev indespærret permanent i A-blokken, blev denne blok aldrig moderniseret. Den beholdt derfor sine flade jernstænger, sine låse og vindeltrapper fra det oprindelige militærfængsel.[68] Flere indsatte sad dog kortvarigt i A-blokken, før en høring eller overførsel.[68] I de senere år af det føderale fængsels levetid, blev A-blokken hovedsageligt brugt til ekstra opbevaringsplads og til et juridisk bibliotek, et sted, hvor de indsatte også kunne sidde og skrive juridiske dokumenter.[68] En lille barber lå for enden af A-blokken, hvor de indsatte kunne få en månedlig klipning.[68]
B-blokken
Hovedparten af nye indsatte i Alcatraz fik tildelt en celle på den øverste etage i B-blokken.[69] De havde "karantæne" i deres første tre måneder på Alcatraz og fik ikke lov til at modtage besøgende i denne periode.[69][70] De indsatte havde tilladelse til at modtage én besøgende om måneden, selv om enhver der kunne forårsage problemer såsom bevisligt kriminelle blev udelukket fra at besøge de indsatte. Breve til fangerne blev kontrolleret af fængselspersonalet først for at se, om der var hemmelige beskeder i posten.[11][71] Frank Morris og dem, som flygtede med ham, undslap Alcatraz under den store flugt ved at gå ind i en forsyningsskakt bag B-blokken.[72]

D-blokken
D-blokken var berygtet som "behandlingsblokken" for nogle af de værste indsatte, der dér modtog varierende grader af straf, herunder isolationsfængsling.[73].[74][75] De fængslede fik normalt fra tre til 19 dage i isolationsfængsling.[75] Fanger, der sad her, fik måltiderne i deres celler og havde ikke lov til at arbejde og kunne kun gå i brusebad to gange om ugen.[74] Efter et flugtforsøg i 1939, hvor Arthur "Doc" Barker blev dræbt, strammede fængselsstyrelsen sikkerheden i D-blokken.[74] Birdman of Alcatraz beboede celle 42 i D-blokken i isolationsfængsel i 6 år af sin afsoning.
Cellerne 9-14 blev kendt som "The Hole" og var de værste celler at sidde i for de indsatte. Forvaring her blev brugt som en straffeforanstaltning mod indsatte, der var gået for vidt. Cellerne lå for enden af D-blokken[76] og havde ingen lys. De var koldere end resten af fængslet, og fangerne, der sad her, blev regelmæssigt afklædt, slået og tortureret og ofte sultet. De var tvunget til at sove på det kolde betongulv iført intet andet end tyndt undertøj.[77][76] Omvendt måtte vagterne stå model til skældsord, og de risikerede at få afføring, urin eller madvarer kastet mod sig eller at blive spyttet på.[75] Fanger, der sad i hullet, fik kun 10 minutters brusebad og en times motion i gården om ugen.[78][75] De seks celler i hullet havde kun en vask og et toilet, og den allerværste celle fik øgenavnet "The Oriental" eller "Strip Cell" hvor et hul i gulvet gjorde det ud toilet, og hvor fangerne sad nøgne uden at modtage noget i to dage.[67][75] Vagterne havde kontrollen med toiletskyllet i cellen.[8] En luge i gulvet i D-blokken ført til fangehullet i kælderen, som indeholdt flere celler. De værste indsatte kunne låses inde i deres celler i fangehullet og lænkes til murene.[77] De fik en mager kost af brød og vand og et egentligt måltid hver tredje dag. De blev nægtet almindelige toiletfaciliteter,[77] men fik en spand som blev tømt en gang om ugen. De blev afklædt og lænket til væggen, så de måtte tilbringe natten stående; ifølge Alvin J. Esau blev indsatte i isolation "sat på sultekost og tvunget til at stå ni timer hver dag med hænderne bundet, mens deres fødder knapt rørte gulvet".[79] Efter endt straf i hullet kunne fangen derefter vende tilbage til sin celle, men han måtte bære et mærke. Mærket var rødt, hvis fangen efterfølgende ikke måtte forlade sin celle i tre måneder,[38] mens andre, der havde været i hullet, kunne efter 30 dages god opførsel igen opnå alle fængslets privilegier.[38]
| "Dens størrelse var omtrent som for en ordinær celle på 2,7 gange 1,5 meter og 2,1 meter i højden. Jeg kunne lige røre loftet ved at strække min arm ud... Du bliver klædt af og skubbet ind i cellen. Vagterne tager dit tøj og går det minutiøst igennem, for det tilfælde at der skulle være lidt tobak i manchetterne eller lommerne. Der er ingen sæbe, ingen tobak, ingen tandbørste. Lugten kan kun beskrives med ordet "stank". Det er som at træde ind i en kloak. Det er kvalmende. Efter at de har gennemsøgt dit tøj, smider de det tilbage til dig. Dit sengetøj udgøres af to tæpper, som du får omkring kl. 17.00 om aftenen. Du har ingen sko, ingen seng, ingen madras - ikke andet end de fire fugtige vægge og to tæpper. Væggene er malet sorte. En gang om dagen fik jeg tre skiver brød - nej - det er en fejl. Nogle dage fik jeg fire skiver. Jeg fik et måltid i fem dage, og kun brød derimellem. I samtlige tretten dage jeg var der, fik jeg to måltider ... Jeg har kun set én mand få et bad i isolationsfængsel i al den tid, jeg har været der. Den mand fik en spand koldt vand kastet over sig". - Henri Young om sine oplevelser i "The Hole" på Alcatraz under retssagen i 1941.[80] | ||
Spisning

Spisesalen på Alcatraz , der ofte omtales som "messen", er den sal, hvor de indsatte og personalet indtog deres måltider. Det er en lang vinge i den vestlige ende af cellehuset, der ligger på midten af øen.[81] Den er forbundet til blokken via en korridor, der er kendt som "Times Square", da den fører forbi et stort ur, når man nærmer sig indgangen til spisesalen.[82] Denne fløj indeholder både spisesalen og køkkenet. På anden etage var der en sal, hvor der blev vist film for de indsatte i weekenden.[83]
Protokollen for spisesalen tilsagde, at der blev brugt en fløjte for at angive, hvilken blok og hvilket hold der kunne komme til i salen på et givent tidspunkt, og bestemte, hvem der sad hvor, og hvornår man måtte begynde at spise.[84] Fangerne blev vækket kl. 6.30 og sendt til morgenmad kl. 6.55.[38] Et skilt med morgenmenuen er bevaret og er fra den 21. marts 1963. Menuen bestod af diverse kornprodukter, røræg, mælk, frugtkompot, brød, ristet brød og smør. Frokosten blev serveret i spisesalen kl. 11.20 efterfulgt af 30 minutters hvile i cellen, før man vendte tilbage og arbejdede indtil kl. 16.15.[38] Middagen blev serveret kl.16.25, og fangerne skulle så trække sig tilbage til deres celler kl. 16.50 for at blive låst inde for natten.[38] De indsatte fik lov til at spise så meget, som de ville inden for 20 minutter, forudsat at de ikke smed noget affald. Rapporter herom kunne medføre, at fangen fik fjernet sine privilegier, hvis vedkommende gjorde det til en vane.[85].[39]
Hvert spisebord havde bænke med plads til seks mænd, selv om mindre borde og stole med plads til fire senere erstattede disse.[43] Alle de indsatte samt vagter og embedsmænd spiste sammen; spisesalen havde således siddepladser til mere end 250 mennesker.[43][86] Maden, der serveredes på Alcatraz, var efter sigende den bedste i USA's fængselssystem.[85].
Gården

Gården i fængslet blev benyttet af de indsatte i fængslet fra 1934 til 1963. Den ligger overfor spisesalen, syd for enden af D-blokken på et plateau, omgivet af en høj mur med et hegn ovenpå.[87][88] Vagttårn nr. 3 lå lige vest for gården.[89] Der var et skydegalleri i gården, placeret over spisesalen.[44] Gården vender ind mod fastlandet.[90]
I 1936 blev den tidligere grusdækkede gård brolagt.[91] Gården var ramme om et af de mest voldsomme flugtforsøg fra Alcatraz i maj 1946, da en gruppe af indsatte udtænkte et plot for at få fat i nøglen til gården, dræbe tårnvagterne, tage gidsler og bruge dem som skjolde for at nå anløbsbroen.[92]
De indsatte måtte gå ud i gården på lørdage og søndage og på helligdage i op til fem timer. [93][94] Indsatte, der arbejdede syv dage om ugen i køkkenet, blev belønnet med korte gårdpauser på hverdage.[94]. Uregerlige fanger kunne få deres gårdadgangsrettigheder taget fra sig i weekenden.[94] Fangerne på Alcatraz måtte spille spil såsom baseball, softball og andre sportsgrene på disse tidspunkter og intellektuelle spil som skak.[93] På grund af gårdens lille størrelse og baseballbanen i den ene ende af den, måtte en del af muren bag første base polstres for at afbøde virkningerne af spillet.[95] De indsatte fik udleveret handsker, bat og bolde, men ikke sportstøj. I 1938 var der fire amatørhold på Alcatraz, Bees, Oaks og Seals, der var opkaldt efter Minor Leagueklubber og fire hold opkaldt efter Major Leagueklubber, Cardinals, Cubs, Giants og Tigers.[96] Mange af de indsatte brugte weekenderne i gården til at tale med hinanden og diskutere kriminalitet, den eneste reelle mulighed de havde i løbet af ugen for at føre længere samtaler.[97]
Andre bygninger
Inspektørens hus

Inspektørens hus på Alcatraz var bolig for fængselssystemets inspektør på øen. Det er placeret nordøst for det centrale cellehus, ved siden af Alcatraz Fyrtårn. Palæet har 15 værelser fordelt på tre etager og blev bygget i 1921 ifølge et skilt opsat af Golden Gate National Recreational Area,[98] selv om nogle kilder siger, at det blev bygget i 1926 eller 1929 og havde 17 eller 18 værelser.[99]
Mellem 1934 og 1963 boede de fire inspektører på Alcatraz her, således også den første fængselsinspektør, James A. Johnston. Dette luksushus stod i skarp kontrast til fængslet ved siden af, og vagterne holdt ofte overdådige cocktailparties her.[100] Et skilt på stedet viser et fotografi af en betroet indsat, der havde gøremål i huset for inspektøren, og at huset havde en terrasseret have og et drivhus.[98] Palæet havde høje vinduer, der gav en fin udsigt over San Francisco-bugten.[99] I dag er huset en ruin, brændt ned af indianere under Besættelsen af Alcatraz den 1. juni 1970.[99]
Bygning 64
Bygning 64 var den første bygning, der blev opført på øen Alcatraz ud for kysten ved San Francisco. Den var udelukkende beregnet til det formål at indkvartere de militære officerer og deres familier, der skulle bo på øen.[101] Den ligger ved ved siden af anløbsbroen på den sydøstlige side af øen, nedenfor inspektørens hus.[102] Bygning 64 var en boligblok på tre etager og bygget i 1905 på stedet som kaserne til den amerikanske hærs personale, som havde været der fra 1860'erne. Den fungerede som militær kaserne fra 1906 til 1933. En af dens største lejligheder i det sydvestlige hjørne blev kendt som "Cow Palace", og en nærliggende gyde gik under navnet "Chinatown".[101]
I det føderale fængsels tid fra 1934 forfaldt bygningen og henstod i en ussel stand, mens et nyt indkvarteringshus blev bygget på paradepladsen. De fleste familier, der ankom til øen, startede dog i Bygning 64, indtil der blev et værelse i den nye indkvartering ledigt.[2] Børnene på Alcatraz var underlagt strenge regler. De var ikke tilladt at cykle eller bære legetøjspistoler og de måtte ikke komme på stranden eller lege i nærheden af vandet på grund af det forræderiske tidevand.[103]
Social Hall

Social Hall, også kendt som Officerernes Klub, var en klub på den nordvestlige side af øen i umiddelbar nærhed af kraftværket, vandtårnet og det tidligere militærkapel. Det husede tidligere et postkontor.[104] Klubben var et socialt mødested for det føderale fængselsvæsens medarbejdere og deres familier på øen, der kunne slappe af efter en hård uges arbejde med USA's mest hærdede forbrydere.[105][106] Bygningen blev brændt ned af indianere under Besættelsen af Alcatraz i 1970, men der står stadig en skal tilbage.
Klubben havde en lille bar, et bibliotek, en stor spisestue samt dansegulv, billard, bordtennis og en bowlingbane med to baner. Stedet var centrum for det sociale liv på øen for de ansatte i fængselsvæsenet.[107][108][109] Der var regelmæssigt middage og bingo-arrangementer, og fra 1940'erne og fremefter vistes der film hver søndag aften, efter at de var blevet vist for de indsatte i løbet af dagen om lørdagen og søndagen.[107][110] Klubben stod for at organisere en lang række særarrangementer på øen (afholdt enten i huset eller på paradegrunden) og for fundraising til alt fra is og vandmeloner, over Halloweenfester og smart tøj til julesammenkomster.[107][111]
Kraftværket
Alcatraz Kraftværk ligger på den nordvestlige kyst af Alcatraz-øen. Det blev bygget i 1939 for 186.000 dollars som en del af en moderniseringsplan til 1,1 millioner dollars, som også omfattede vandtårnet, New Industries Building, officerskvartererne og en nyindretning af D-blokken.[112] Det hvide kraftværks skorsten og fyrtårnet siges at have givet indtryk af "et skibs mast på begge sider af øen".[113] "En advarsel. Ingen adgang. Kun regeringsfolk har adgang inden for 200 yards" stod der på et skilt foran kraftværket for at afskrække folk fra at lande på øen på det sted.
Mellem 1939 og 1963 leverede det strøm til fængslet og de andre bygninger på øen. Kraftværket havde et tårn, som blev bevogtet med en "30-kaliber Winchester riffel med 50 runder ammunition, en Colt .45 halvautomatisk pistol med tre pakker ammunition med syv runder, tre gasgranater samt en gasmaske".[114]
Alcatraz vandtårn

Alcatraz Vandtårn ligger på den nordvestlige side af øen, nær tårn nr. 3, efter lighuset og fængselsgården.[115] Vandtanken ligger på seks tværgående, afstivede stålben nedsænket i et betonfundament.[116][117]
Da Alcatraz ikke havde egen vandforsyning, måtte vandet importeres fra fastlandet med slæbebåd og pram.[118] I den periode, hvor øen var under militæret, var der vandtanke i jorden og på taget af citadellet.[119] Vandtårnet blev opført i 1940-1941 af fængselsstyrelsen,[120] efter at øen havde modtaget et renoveringsbeløb fra regeringen, så det meste af øen kunne forsynes med frisk vand.[119]
Vandtårnet er den højeste bygning på øen og har en højde på 28,5 meter; tanken rummer knap 950.000 liter frisk vand. Den blev brugt til at gemme vand til drikkevand, vand til brandslukning, og vand til øens tøjvaskeri.[121][122][117]
Model Industries Building
Model Industries Building er en tre-/fire-etagers bygning i det nordvestlige hjørne af Alcatraz Island. Denne bygning blev oprindeligt opført af det amerikanske militær og blev brugt som vaskeri, indtil New Industries Building blev anlagt som en del af et ombygningsprogram på Alcatraz i 1939, hvor det føderale fængsel var kommet til. Som en del af Alcatraz-fængslet var der workshops i bygningen, hvor de indsatte arbejdede.[123]

Den 10. januar 1935 skred bygningen, så der kun var ca. en meter til kanten af klippen, efter et jordskred forårsaget af en kraftig storm. Inspektøren på det tidspunkt, James A. Johnston foreslog at forlænge diget ud for det og bad præsidiet om 6.500 dollars til finansieringen. Han skulle senere fremhæve, at han ikke brød sig om den bygning, fordi den stod skævt.[112] En billig kystsikringsplan blev afsluttet ved udgangen af 1935. Et vagttårn blev opført på taget af Model Industries Building i juni 1936, og bygningen blev sikret med tremmer fra gamle cellevinduer og riste, der havde dækket tagventilatorer, og som havde skullet forhindre indsatte i at undslippe fra taget.[112] Bygningens vaskerifunktion blev sløjfet i 1939, da vaskeriet blev flyttet til den øverste etage i New Industries Building. I dag er bygningen er stærkt rustet efter årtier i den salte luft og vind, og vagttårnet på toppen af bygningen eksisterer ikke længere.
New Industries Building
New Industries Building blev bygget i 1939 for 186.000 dollars som en del af et moderniseringsprogram til 1,1 millioner dollars, som også omfattede vandtårn, kraftværket, officererskvartererne og en renovering af D-blokken.[8]
I stueetagen af bygningen, der var to etager høj og 93 meter lang, var der en klædefabrik, et renseri, en møbelfabrik, en penselfabrik og et kontor, hvor fanger fra det føderale fængsel kunne arbejde.[8] De tjente en lille løn for deres arbejde, der blev sat på en konto, benævnt fangens Trust Fund, som ville blive givet til dem, når de skulle forlade Alcatraz.[124] De lavede forskellige varer, fx handsker, møbler, måtter og hæruniformer.[123] Vaskeriet fyldte hele den øverste etage og var det største i San Francisco på det tidspunkt.[8][123] Hvert vindue har ni ruder, og der er 17 vinduespartier på hver etage på hver side.
Berygtede indsatte
| Billede | Indsat | Nummer og periode | Information |
|---|---|---|---|
![]() | Arthur R. Barker ("Doc") | # 268 1935-1939 | Arthur Barker (4. juni 1899 - 13. januar 1939) var søn af Ma Barker og et medlem af Barker-Karpis' bande sammen med Alvin Karpis. I 1935 blev Barker sendt til Alcatraz på grund af et kidnapningsforsøg. Om natten den 13. januar 1939 forsøgte Barker sammen med Henri Young og Rufus McCain at flygte fra Alcatraz. Barker blev skudt og dræbt af vagterne.[125] |
![]() | Alphonse "Al" Gabriel Capone ("Scarface") | #85 1934-1939 | Da Al Capone (17. januar 1899 - 25. januar 1947) ankom til Alcatraz i 1934, gjorde fængselsfunktionærerne det klart, at han ikke ville modtage nogen særbehandling. Mens han afsonede sin tid i Atlanta Federal Penitentiary, havde Capone, en mestermanipulator, fortsat rænkespil kørende, selv bag tremmer, idet han bestak vagterne.[37] Capone skabte stor medieopmærksomhed, mens han var på Alcatraz, selvom han aftjente blot fire og et halvt år af sin straf der,[37] før han udviklede symptomer på tertiær syfilis og et dårligt mentalt helbred, og han blev overført til den føderale forbedringsanstalt på Terminal Island i Los Angeles i 1938. Han gjorde sit bedste for at opnå tjenester fra inspektør Johnston, men det mislykkedes, og han fik mange underordnede jobs i fængslet og havde mange kampe i fængslet med medfanger, herunder en medfange, der holdt en kniv for hans hals hos barberen efter at Capone havde forsøgt at komme foran i køen. Han blev løsladt fra fængslet i november 1939 og boede i Miami indtil sin død i 1947, 48 år gammel.[37][126] |
![]() | Meyer Harris Cohen ("Mickey") | #1518 1961-1963 | Mickey Cohen (4. september 1913 - 29. juli 1976) arbejdede for mafiaen. Han blev dømt for skatteunddragelse og idømt 15 år på Alcatraz Island. Efter to års afsoning slog en anden indsat Cohen med et blyrør, hvorved han delvist lammede gangsteren. Efter sin løsladelse i 1972 førte Cohen et stille liv med gamle venner.[127] |
![]() | Ellsworth Raymond Johnson ("Bumpy") | #1117 1954-1963 | "Bumpy" Johnson (31. oktober 1905 - 7. juli 1968), der omtales som "Godfather of Harlem", var en afroafrikansk gangster, svindler og spritsmugler i Harlem i begyndelsen af 20. århundrede. Han blev sendt til Alcatraz i 1954 og var fængslet indtil 1963. Han menes at have været involveret i Frank Morris, John Anglin og Clarence Anglins flugtforsøg i 1962.[128] |
![]() | Alvin Francis Karpavicz ("Creepy Karpis") | # 325 1936-1962 | Alvin Karpis (10. august 1907 - 26. august 1979) var født litauer. Han fik tilnavnet "Creepy" for sit skumle smil og blev kaldt "Ray" af sine bandemedlemmer. Han var kendt for at være en af de tre ledere af Ma Barker-Karpis' bande i 1930'erne; de to andre ledere var Fred og Doc Barker fra Ma Barker-banden. Han var den sidste "Samfundsfjende nr. 1", der blev fanget personligt af J. Edgar Hoover. Han er med 26 år på øen den fange, der har tilbragt længst tid i Alcatraz-fængslet. Mens han sad der, blev han tævet af Allie Anderson, indsat nr. 340.[129] Karpis var noteret for ti mord og seks kidnapninger foruden et bankrøveri. Han blev deporteret til Canada i 1971 og døde i Spanien i 1979.[126][130][131] |
![]() | George Celino Barnes ("Machine Gun Kelly") | # 117 1934-1951 | "Machine Gun Kelly" (18. juli 1895 - 18. juli 1954) ankom den 4. september 1934. På Alcatraz pralede Kelly konstant med flere røverier og mord, som han aldrig havde begået.[132] Selv om hans praleri siges at have trættet andre fanger, anså inspektør Johnson ham for en rollemodel for de indsatte. Indsat nr. 139, Harvey Bailey, der blev kendt som "The Dean of American Bank Robbers", var hans makker.[129] Kelly blev sendt tilbage til fængslet i Leavenworth i 1951. |
| Rafael Cancel Miranda | # 1163 1954-1960 | I juli 1954 blev Rafael Annuller Miranda (født 1930) sendt til Alcatraz, hvor han afsonede seks år af sin straf. På Alcatraz han var en mønsterfange,[1] hvor han arbejdede på penselfabrikken og tjente som messedreng ved katolske gudstjenester. Hans nærmeste venner var landsmændene og puertoricanerne Emerito Vasquez og Hiram Crespo-Crespo. De talte spansk og passede på hinanden. Når han var på gårdtur, spillede han ofte skak med Harlem-gangsteren Ellsworth "Bumpy" Johnson.[1] Han blev også venner med Morton Sobell; de udviklede et venskab, der stadig består.[1]
Hans familie foretog rejser til San Francisco for at besøge ham, men han fik ikke lov til at se sine børn. Hans kone fik lov at tale med ham bag en rude i besøgsrummet, idet hun måtte benytte en telefon. De fik ikke lov til at tale på spansk, men skulle tale engelsk sammen.[133] Han blev overført til Leavenworth i 1960. | |
![]() | Robert Franklin Stroud ("Birdman of Alcatraz") | # 594 1942-1959 | Robert Stroud, som var bedre kendt i offentligheden som "Birdman of Alcatraz" (28. januar 1890 - 21. november 1963), blev overført til Alcatraz i 1942. I en ung alder blev han involveret i alfonseri og var delagtig i et mord som følge af et beruset slagsmål, hvorefter han blev dømt til døden ved hængning. Retten fastholdt dog ikke sin dødsdom, men idømte ham 12 års fængsel. Efter ophold på McNeil Island og i Leavenworth, hvor han havde dræbt betjenten Andrew Turner, blev han overført til Alcatraz med en forlænget dom.
Stroud var autodidakt ornitolog og skrev bøger om fugle. Hans Digest on the Diseases of Birds udkom i 1943 og betragtes som en klassiker indenfor faget. Han blev spærret inde i D-blokken under det meste af opholdet på Alcatraz, hvor han fik isolationsfængsel.[134] Efter en periode i fængselshospitalet blev han overført til et medicinsk center for føderale fanger i Springfield i Missouri, fordi hans helbred var blevet alvorligt forværret.[6] Selv om han fik tilnavnet "The Birdman of Alcatraz", havde han ikke tilladelse til at holde fugle i fængslet, sådan som han havde været i stand til at gøre tidligere. Han døde i 1963.[6][25][135][136] |
Et efter sigende hjemsøgt fængsel
Alcatraz er blevet nævnt som et af de mest hjemsøgte steder i Amerika,[137][138] og også som det mest hjemsøgte fængsel i landet.[139][140] Jerry Lewis Champion Jr. har sagt, at det er "let at se, at Alcatraz-øen indeholder hele den aura, der skaber fortællinger om spøgelser og fortabte sjæle".[141] Indianerne, de indfødte amerikanere, nævnte de onde ånder, de angiveligt fandt på øen længe før det blev et føderalt fængsel.[142] Mark Twain beskrev efter et besøg den uhyggelige stemning på øen, som var "så kold som vinteren, selv i sommermånederne".[142]
I populærkulturen
Galleri
Fængslet på Alcatraz
Inspektørens skrivebord
A-blokken
Barberen for enden af A-blokken
En celle i B-blokken
En celle i D-blokken
En celle i D-blokken
Hospitalsreglement
Hospitalsgang
Kælder
Brusere
Kommunikationscentral
Vagter
Køkken
Visitation
Bygning 64
Fængselsskilt og indiansk graffiti- Vandtårnet
- Kraftværket
- Model Industries Building
Noter
- 1 2 3 4 "Former Alcatraz inmate speaks about his time", San Francisco Examiner, by D. Morita; October 9, 2009
- 1 2 Wellman 2008, s. 29.
- 1 2 Alcatraz. Chronicle Books. s. 76. ISBN 978-1-4521-1310-4. Hentet 4. september 2012.
- 1 2 Lewis Champion Jr 2011, s. 52.
- 1 2 MacDonald & Nadel 2012, s. 20.
- 1 2 3 4 5 6 7 8 9 10 "A Brief History of Alcatraz". Federal Bureau of Prisons. Hentet 6. september 2012.
- ↑ Wellman 2008, s. 31.
- 1 2 3 4 5 6 7 8 9 10 11 12 13 14 15 16 17 18 19 20 21 22 23 24 25 26 27 28 29 30 31 "The Rock" (PDF). National Park Service Historical Resource Study. Hentet 6. november 2012.
- ↑ "Stewart Iron Works thrived in Covington in early 1900s". Uddrag fra "The Encyclopedia of Northern Kentucky". Cincinnati Post. 23. oktober 2006. Arkiveret fra originalen 14. oktober 2008. Hentet 6. september 2012.
- ↑ Oliver 1998, s. 9.
- 1 2 Roth 2010, s. 236.
- 1 2 3 4 "This Is An Alcatraz Documentary (Part 1)". Fortalt af Howard Duff. 1971. Hentet 4. september 2012.
- 1 2 Siegel 2009, s. 589.
- 1 2 3 Sloate 2008, s. 9.
- 1 2 3 Sloate 2008, s. 12.
- ↑ Reid 2011, s. 332.
- ↑ Dunbar 1999, s. 14.
- 1 2 Person 2010, s. 24.
- ↑ Dickinson, Blair & Ott 2010, s. 160.
- ↑ Gonzales, Richard (22. maj 2006). "New Parts of Alcatraz Revealed to Public". People and Places. National Public Radio. Hentet 8. september 2012.
- 1 2 Hughes 2009, s. 72.
- ↑ "Your Dollars At Work - Alcatraz Island". National Park Service. Hentet 15. september 2012.
- ↑ Bruce, s. 7
- ↑ "Alcatraz Escape Attempts". Alcatrazhistory.com. Hentet 24. januar 2011.
- 1 2 3 4 "Alcatraz - Page 6". Legendsofamerica.com. Arkiveret fra originalen 27. august 2012. Hentet 7. september 2012.
- ↑ "FBI Records: The Vault-Alcatraz Escape A Brief History of Alcatraz". Federal Bureau of Investigation. Hentet 6. september 2012.
- ↑ "Tale of 3 Inmates Who Vanished From Alcatraz Maintains Intrigue 50 Years Later". BBC. 9. juni 2012. Hentet 15. september 2012.
- 1 2 3 4 Ward & Kassebaum 2009, s. 69.
- ↑ "For Desperate or Irredeemable Types United States Federal Penitentiary Alcatraz". A History of Alcatraz Island, 1847–1972, Historic Resources Study. Hentet 6. september 2012.
- ↑ Sifakis 2002, s. 34.
- ↑ Lewis Champion Jr 2011, s. 122.
- ↑ Albright 2008, s. 166.
- ↑ Wellman 2008, s. 20.
- 1 2 Gregory 2008, s. 151.
- ↑ Westbrook 2010, s. 59.
- ↑ Ryan & Schlup 2006, s. 9.
- 1 2 3 4 5 "Alcatraz – Page 4". Legendsofamerica.com. Arkiveret fra originalen 27. august 2012. Hentet 7. september 2012.
- 1 2 3 4 5 6 7 8 9 10 11 12 "This Is An Alcatraz Documentary (Part 2)". Fortalt af Howard Duff. 1971. Hentet 30. august 2012.
- 1 2 "For Desperate or Irredeemable Types United States Federal Penitentiary Alcatraz". A History of Alcatraz Island, 1847–1972, Historic Resources Study. Hentet 6. september 2012.
- ↑ Sloate 2008, s. 10.
- ↑ Wellman 2008, s. 33.
- ↑ Sloate 2008, s. 13.
- 1 2 3 Wellman 2008, s. 36.
- 1 2 Lewis Champion Jr 2011, s. 140.
- ↑ MacDonald & Nadel 2012, s. 44.
- ↑ Sifakis 2002, s. 130.
- ↑ Champion 2012, s. 140.
- 1 2 3 4 Lewis Champion Jr 2011, s. 106.
- ↑ Gregory 2008, s. 83 og 114.
- 1 2 Dunbar 1999, s. 53.
- 1 2 3 4 5 Lewis Champion Jr 2011, s. 109.
- 1 2 "Alcatraz". Genealogytrails.com. Hentet 7. september 2012.
- ↑ Babyak 1994, s. 230.
- ↑ "Alcatraz Archive". Sfgenealogy.com. Arkiveret fra originalen 5. februar 2012. Hentet 7. september 2012.
- 1 2 3 4 5 6 7 8 "Alcatraz Rules & Regulations" (PDF). Historyarchive.com. Hentet 10. september 2012.
- ↑ Morris & Rothman 1997, s. 168.
- 1 2 3 4 5 Watson 2012, s. 23.
- 1 2 3 Dunbar 1999, s. 31.
- 1 2 3 4 5 6 Dunbar 1999, s. 41.
- ↑ "The Hauntings of Alcatraz". Prairie Ghosts. Arkiveret fra originalen 4. maj 2012. Hentet 7. september 2012.
- ↑ "Alcatraz – Page 7". Legendsofamerica.com. Arkiveret fra originalen 27. august 2012. Hentet 7. september 2012.
- ↑ MacDonald & Nadel 2012, s. 52.
- 1 2 3 Ward & Kassebaum 2009, s. 102.
- 1 2 "Minimum Privileges". Alcatraz101.com. Arkiveret fra originalen 18. juni 2012.
- ↑ Wellman 2008, s. 34.
- ↑ Courtney 2009.
- 1 2 3 Watson 2012, s. 21.
- 1 2 3 4 Dunbar 1999, s. 36.
- 1 2 "Prison Routine". Alcatraz History. 4. september 2012.
- ↑ Sloate 2008, s. 90.
- ↑ Morris & Rothman 1997, s. 167.
- ↑ Alcatraz. Chronicle Books. s. 120. ISBN 978-1-4521-1310-4. Hentet 4. september 2012.
- ↑ Lewis Champion Jr 2011, s. 16.
- 1 2 3 "The Ghosts of Alcatraz Island". Legends of America. Hentet 4. september 2012.
- 1 2 3 4 5 Dunbar 1999, s. 35.
- 1 2 Alber 2007, s. 27.
- 1 2 3 Kohn 1994, s. 186.
- ↑ Rattle & Vale 2008, s. 30.
- ↑ Esau 2005, s. 7.
- ↑ Ward & Kassebaum 2009, s. 199.
- ↑ Howard 1977, s. 12.
- ↑ Alcatraz. Chronicle Books. s. 93. ISBN 978-1-4521-1310-4. Hentet 31. august 2012.
- ↑ "Alcatraz:Inmate Regulations". Alcatraz History. Hentet 15. september 2012.
- ↑ Ward & Kassebaum 2009, s. 98.
- 1 2 McShane 1996, s. 36.
- ↑ Sarat 2012, s. 80.
- ↑ Historic Preservation. 1995. s. 91. Hentet 31. august 2012.
- ↑ Fortunate Eagle, Adam; Golden Gate National Park Association (1992). Alcatraz! Alcatraz!: the Indian occupation of 1969–1971. Heyday Books. s. 84. ISBN 978-0-930588-51-9. Hentet 31. august 2012.
- ↑ Dunbar 1999, s. 71.
- ↑ Moseley 2009, s. 268.
- ↑ Ward & Kassebaum 2009, s. 47.
- ↑ Watson 2012, s. 47.
- 1 2 Wellman 2008, s. 51.
- 1 2 3 Albright 2008, s. 151.
- ↑ Seymour 1991, s. 431.
- ↑ "For it's one, two, three strikes, you're (not) out, at the old ball game". National Park Service. Hentet 31. august 2012.
- ↑ Lewis Champion Jr 2011, s. 119.
- 1 2 "Warden's House". Golden Gate National Recreational Area. Hentet 31. august 2012.
- 1 2 3 Dunbar 1999, s. 82.
- ↑ Hughes et al. 2010, s. 369.
- 1 2 Lewis Champion Jr 2011, s. 91.
- ↑ MacDonald & Nadel 2012, s. 13.
- ↑ Sloate 2008, s. 6.
- ↑ Dickinson, Blair & Ott 2010, s. 187.
- ↑ Barter 1999, s. 83.
- ↑ Lewis Champion Jr 2011, s. 96.
- 1 2 3 Albright 2008, s. 192.
- ↑ BMI Staff; Tina Dittbenner Morgan (1. september 2010). Al Capone Does My Shirts Study Guide and Student Workbook. BMI Educational Services. s. 66. ISBN 978-1-60933-701-8. Hentet 31. august 2012.
- ↑ Dunbar 1999, s. 48.
- ↑ Alcatraz. Chronicle Books. s. 128. ISBN 978-1-4521-1310-4. Hentet 31. august 2012.
- ↑ Wellman 2008, s. 110.
- 1 2 3 "The History of Alcatraz". Alcatrazhistory.com. Hentet 31. august 2012.
- ↑ MacDonald & Nadel 2012, s. 39.
- ↑ Wellman 2008, s. 40.
- ↑ Albright 2008, s. 131.
- ↑ Robinson, Peter B. (1. februar 2004). The Tribunal. iUniverse. s. 9. ISBN 978-0-595-30754-8. Hentet 31. august 2012.
- 1 2 "White Tarps To Shroud Alcatraz Water Tower During Repair Work". Bay City News. 11. november 2011. Arkiveret fra originalen 13. november 2011. Hentet 31. august 2012.
- ↑ Lewis Champion Jr 2011, s. 36.
- 1 2 Wellman 2008, s. 45.
- ↑ Nolte, Carl (16. november 2011). "No escaping it – Alcatraz water tank gets face-lift". SF Gate. Hentet 5. september 2012.
- ↑ "Alcatraz Water Tower". NBC Bay Area. 15. november 2012.
- ↑ Lewis Champion Jr 2011, s. 59.
- 1 2 3 Dunbar 1999, s. 77.
- ↑ Sloate 2008, s. 14.
- ↑ Esslinger 2003, s. 180.
- 1 2 "Alcatraz - Page 54". Legendsofamerica.com. Arkiveret fra originalen 18. august 2012. Hentet 7. september 2012.
- ↑ "The Biography Channel". The Biography Channel. Arkiveret fra originalen 26. juni 2012. Hentet 7. september 2012.
- ↑ "Notorious Inmates". National Park Service. Hentet 7. september 2012.
- 1 2 Courtney, Gary D. (5. januar 2009). Carl Janaway – Smartest Bandit of the Cookson Hills: Last Surviving Bank Robber of the 1930's, Builder of Getaway Cars for "Pretty Boy" Floyd & Nursemaid to Al Capone in Alcatraz Prison. AuthorHouse. s. 257–. ISBN 978-1-4259-9588-1. Hentet 8. september 2012.
- ↑ ""Creepy" Alvin Karpis – Public Enemy No. 1". sgvTribune.com. Arkiveret fra originalen 31. august 2012. Hentet 7. september 2012.
- ↑ "Alcatraz: The "Worst of the Worst" – Doing Hard Time on the Rock". Goldengate National Park Conservancy. Hentet 7. september 2012.
- ↑ Garvey & Hanning 2008, s. 57.
- ↑ Koppel, Martin; Girard, Rollande; Perasso, Jacob. ""We Came Out Of Prison Standing, Not On Our Knees" – Rafael Cancel Miranda on his political activity in jail and the campaign for his freedom". The Militant, Vol.62/No.33, 21. september 1998. Hentet 9. september 2012.
{{cite web}}: CS1-vedligeholdelse: Flere navne: authors list (link) - ↑ George 1998, s. 20.
- ↑ "Top Ten Alaskans-Robert Shroud". Times Specials. Arkiveret fra originalen 21. september 2012. Hentet 7. september 2012.
- ↑ "Officer Andrew F. Turner". Times Specials. Hentet 7. september 2012.
- ↑ "America's Most Haunted Places". Huffington Post. 19. oktober 2012. Hentet 6. november 2012.
- ↑ Wetzel 2008, s. 33.
- ↑ Person 2010, s. 26.
- ↑ Brown 2011.
- ↑ Lewis Champion Jr 2011, s. 165.
- 1 2 Lynch, Canwell & Sutherland 2011, s. 125.
Bibliografi
- Alber, Jan (2007). Narrating the Prison: Role and Representation in Charles Dickens' Novels, Twentieth-Century Fiction, and Film. Cambria Press. ISBN 978-1-934043-60-8.
- Albright, Jim (2008). Last Guard Out: A Riveting Account by the Last Guard to Leave Alcatraz. AuthorHouse. ISBN 978-1-4343-5077-0.
- Alcatraz. Chronicle Books. s. 76. ISBN 978-1-4521-1310-4.
- Babyak, Jolene (1994). Birdman: the many faces of Robert Stroud. Ariel Vamp Press. ISBN 978-0-9618752-2-0.
- Barter, James (1999). Alcatraz. Lucent Books. ISBN 978-1-56006-596-8.
- Brown, Alan (2011). Ghosts Along the Mississippi River. Univ. Press of Mississippi. ISBN 978-1-61703-144-1.
- Courtney, Gary D. (2009). Carl Janaway – Smartest Bandit of the Cookson Hills: Last Surviving Bank Robber of the 1930's, Builder of Getaway Cars for "Pretty Boy" Floyd & Nursemaid to Al Capone in Alcatraz Prison. AuthorHouse. ISBN 978-1-4259-9588-1.
- Dickinson, Greg; Blair, Carole; Ott, Brian L. (2010). Places of Public Memory: The Rhetoric of Museums and Memorials. University of Alabama Press. ISBN 978-0-8173-5613-2.
- Dillon, Charles Raymond (2001). They Came Back: Tales of Reincarnation, Ghosts, and Life After Death. iUniverse. ISBN 978-0-595-17554-3. Hentet 4. september 2012.
- Doak, Robin S. (2011). Investigating Hauntings, Ghosts, and Poltergeists. Capstone. ISBN 978-1-4296-4814-1.
- Dunbar, Richard (1999). Alcatraz. Casa Editrice Bonechi. ISBN 978-88-8029-940-0.
- Dwyer, Jeff (2005). Ghost Hunter's Guide to the San Francisco Bay Area. Pelican Publishing. ISBN 978-1-58980-289-6.
- Esau, Alvin J. (2005). The Courts and the Colonies: The Litigation of Hutterite Church Disputes. UBC Press. ISBN 978-0-7748-1117-0.
- Esslinger, Michael (2003). Alcatraz: A Definitive History of the Penitentiary Years. Ocean View Pub. ISBN 978-0-9704614-0-7. (Webside ikke længere tilgængelig)
- Garvey, John; Hanning, Karen (2008). Irish San Francisco. Arcadia Publishing. ISBN 978-0-7385-3049-9.
- George, Linda (1999). Alcatraz. Turtleback Books. s. 180. ISBN 978-0-613-51967-0.
- Gregory, George H. (2008). Alcatraz Screw: My Years as a Guard in America's Most Notorious Prison. University of Missouri Press. ISBN 978-0-8262-1396-9.
- Howard, Clark (1977). Six against the Rock. Dial Press. ISBN 978-0-8037-8003-3.
- Hughes, Holly (2009). Frommer's 500 Places to Take Your Kids Before They Grow Up. John Wiley & Sons. ISBN 978-0-470-47405-1.
- Hughes, Holly; Murphy, Sylvie; Flippin, Alexis Lipsitz; Duchaine, Julie (2010). Frommer's 500 Extraordinary Islands. John Wiley & Sons. ISBN 978-0-470-50070-5.
- Kohn, Stephen Martin (1994). American Political Prisoners: Prosecutions Under the Espionage and Sedition Acts. Greenwood Publishing Group. ISBN 978-0-275-94415-5.
- Lewis Champion Jr, Jerry (2011). The Fading Voices of Alcatraz. AuthorHouse. ISBN 978-1-4567-1488-8.
- Lewis Champion Jr, Jerry (2012). Alcatraz Unchained. AuthorHouse. ISBN 978-1-4685-8753-1.
- Lynch, Gordon J.; Canwell, Diane; Sutherland, Jonathan (2011). Famous Ghosts and Haunted Places. The Rosen Publishing Group. ISBN 978-1-4488-5985-6.
- MacDonald, Donald; Nadel, Ira (2012). Alcatraz: History and Design of a Landmark. Chronicle Books. ISBN 978-1-4521-0153-8.
- Mcshane, M. (1996). Encyclopedia of American Prisons. Taylor & Francis. ISBN 978-0-8153-1350-2.
- Morris, Norval; Rothman, David J. (1997). The Oxford History of the Prison: The Practice of Punishment in Western Society. Oxford University Press. ISBN 978-0-19-511814-8.
- Moseley, Andy (2009). Around the States in 90 Days. ISBN 978-0-9561551-0-8.
- Oliver, Marilyn Tower (1998). Alcatraz Prison in American History. Berkley Heights, NJ: Enslow Publishers Inc. ISBN 0-89490-990-8.
- Person, Stephen (2010). Ghostly Alcatraz Island. Bearport Publishing. ISBN 978-1-936087-97-6.
- Rattle, Alison; Vale, Allison (2008). Hell House: & Other TRUE Hauntings from Around the World. Sterling Publishing Company, Inc. ISBN 978-1-4027-6310-6.
- Reid, Sue Titus (2011). Criminal Justice Essentials. John Wiley & Sons. ISBN 978-0-470-65887-1.
- Richards, Rand (2004). Haunted San Francisco: Ghost Stories from the City's Past. Heritage House Publishers. ISBN 978-1-879367-04-3.
- Roth, Mitchel P. (2010). Crime and Punishment: A History of the Criminal Justice System. Cengage Learning. ISBN 978-0-495-80988-3.
- Ryan, James Gilbert; Schlup, Leonard C. (2006). Historical Dictionary of The 1940s. M.E. Sharpe. ISBN 978-0-7656-0440-8.
- Sammons, Mary Beth; Edwards, Robert (2005). American Hauntings. Barnes & Noble. ISBN 978-0-7607-6293-6.
- Sarat, Ausin (2012). Studies in Law, Politics, and Society. Emerald Group Publishing. ISBN 978-1-78052-623-2.
- Seymour, Harold (1991). Baseball: The People's Game. Oxford University Press. ISBN 978-0-19-506907-5.
- Siegel, Larry J. (2009). Introduction to Criminal Justice. Cengage Learning. ISBN 978-0-495-59977-7.
- Sifakis, Carl (2002). The Encyclopedia of American Prisons. Infobase Publishing. ISBN 978-1-4381-2987-7.
- Sloate, Susan (2008). Mysteries Unwrapped: The Secrets of Alcatraz. Sterling Publishing Company, Inc. ISBN 978-1-4027-3591-2.
- Ward, David A.; Kassebaum, Gene G. (2009). Alcatraz: The Gangster Years. University of California Press. ISBN 978-0-520-25607-1. Hentet 31. august 2012.
- Watson, Stephanie (2012). The Escape from Alcatraz. ABDO. ISBN 978-1-61783-303-8.
- Wellman, Gregory L. (2008). A History of Alcatraz Island: 1853–2008. Arcadia Publishing. ISBN 978-0-7385-5815-8.
- Westbrook, Tina (2010). Return to Alcatraz. Trafford Publishing. ISBN 978-1-4269-4357-7.
- Wetzel, Charles (2008). Mysteries Unwrapped: Haunted U.S.A. Sterling Publishing Company, Inc. s. 38. ISBN 978-1-4027-3735-0. Hentet 4. september 2012.
Eksterne links
- Fængselsreglementet og fængslets historie
- Alcatrazhistory.com – en detaljeret indføring i Alcatraz' historie
- National Park Service website om Alcatraz-øen
- Et kort over cellebygningen











